Runstens gård
Haninge
305 + 69 kvm
Areal 47 ha

Runsten Equestrian - en internationell ryttararena i världsklass

En fullskalig modern ryttaranläggning med ridhus av internationell standard. Flertalet gräs- och fibersandbanor med hög tävlingsstandard samt stallplatser för ca 130 hästekipage. Fälttävlan och väldränerade hagar för både sommar, vinter och lösdrift. Veterinärklink, mansgårdsbyggnad samt restaurang. En modern anläggning på totalt 47 ha med alla tänkbara faciliteter gör den till en av Sveriges främsta. Möjlighet att köpa till mark på knappa 17 ha. Goda intäktsmöjligheter från verksamheten. Endast 30 km från Stockholm.

Anbudsförande/indikativt pris för huvudfastigheten inklusive verksamt på 85 MSEK.

Beskrivning

Välkommen till en av Sveriges mest imponerande hästgårdar, Runsten Equestrian. En gård för dig som söker det allra bästa inom ridsport och hästverksamhet, endast 30 minuter från centrala Stockholm. Denna påkostade och professionellt skötta anläggning är belägen på ca 50 hektar utvecklad mark med sandbotten, vilket ger exceptionella förutsättningar. Här kombineras funktion, kvalitet och förstklassiga faciliteter. Gården erbjuder totalt 155 stallplatser i tio stall, stora hagar, lösdrift på fina betesmarker och ett välorganiserat inackorderingsstall med erfaren personal på plats. Flera boenden finns på gården, perfekt för både personal och gäster. Runsten har idag två stora ridhus, fantastiska ridbanor, preparerade ridvägar med sandunderlag. Anläggningen är dessutom välkänd som tävlingsplats; här hålls regelbundet stora tävlingar och evenemang. Inomhus-SM arrangerades hösten 2024 på gården. Det här är en sällsynt möjlighet att förvärva en fullt fungerande och välrenommerad ridsportanläggning med ett svårslaget läge nära huvudstaden.

Ridhus & ridbanor
Två fina ridhus. Det större av de två är ett av nordens största om 80 * 30 m med läktaren längst med långsidan med plats för 350-400 personer. I byggnaden finns även ett kontor, en stor eventlokal som rymmer 100 personer med utsikt över ridplanen samt en välutrustad restauranglokal med kyl- och frysrum. Uthyrningsdel med egen ingång som idag disponeras som gårdsbutik. Flertalet wc i anslutning till läktaren och restaurangen. Byggnaden är i mycket fint skick från 2005 samt nymålat 2022. Det mindre av de två ridhuset är uppfört 2023 och har en yta om 62 * 22 m med läktare för 40 personer längst med kortsidan. Utöver ridhusen har gården ett flertal stora fibersand- och gräsbanor samt två terrängbanor i toppklass. Gården har fyra fibersandbanor varav en som vinterunderhålls samt två fina stora gräsbanor. Den stora terrängbanan med hinder på gräs passar för alla nivåer och är öppen under sommarsäsongen. Den mindre, inhägnade terrängbanan på sand kallas Allvädersbanan är möjlig att nyttja året runt. Alla banor håller hög tävlingsstandard på underlaget och vid både gräs- och fibersandbanorna finns flertalet mindre byggnader för tävlingarna såsom domartorn, sekretariat, café m.m.

Stall & hagar
På gården finns hela tio olika stall med totalt ca 155 boxar för olika behov. Alla stall har tillhörande sadelkammare och faciliteter för hästskötsel. Vid stora hästsportsevenemang används utöver stallen en stor uppställningsyta om 11 ha med mobilstall som kan anpassas efter antalet förväntade besökare, vanligtvis ca 300 uppställningsplatser. I anslutning till stallbyggnaderna ligger 100 väldränerade året-runt-hagar om 10 * 30 m med väldränerat sandunderlag samt flertalet stora fina sommarhagar och lösdrifter med betesmark, liggplatser och foderplatser. I dagsläget har gården ca 90-100 hästar inackorderade. Kapacitet för fler hästar finns.

Två utestall med totalt 24 boxar (2012)
Gäststallet med 29 boxar (2015)
Nya stallet med 20 boxar (2013)
Längorna har 24 boxar (2005)
Tältstall med 30 mobila boxar (2022)
Karantänstallet med 4 boxar (2014)
Sandstallet med 6 boxar (2016)
Mangårdsbyggnad med 6 uteboxar (2010)
Mangårdsbyggnad stall med 8 boxar samt 4 boxar i ponnystall (äldre byggnad)

Bostäder & ekonomibyggnader
Ståtlig Mangårdsbyggnad om 305 kvm boarea och en totalarea på 425 kvm i två plan. Stora öppna ytor på nedre plan och sovrummen lugnt belägna på övre plan. Härlig uteplats med stor gräsyta och gårds utsikt. Gården erbjuder flera boenden i olika stil anpassade för olika tillfällen och behov. Intill Mangårdsbyggnaden ligger fyra röda gäststugor med flera sängplatser som används av anställda och för uthyrning till olika lägerverksamheter. Två större gästboenden med totalt 30 bäddar med tillhörande gemensamma ytor med köksdel och badrum.

Område
Intill Runsten Equestrian har en trevlig bebyggelse med charmiga småhus växt fram, här bor många hästägare som är inackorderade på gården. I närområdet finns en nyöppnad förskola i ett modernt nybyggt hus, vilket ger småbarnsfamiljer ett tryggt och smidigt alternativ precis i närheten, fler förskolor och skolor finns i både Riksten (ca 7 km) och Tungelsta (ca 9 km). Barn som går i Tungelsta skola hämtas och lämnas med skoltaxi. För vardagens inköp finns en välsorterad ICA Nära i Riksten. I Tungelsta hittar du både Coop och trevliga restauranger. Endast 3 km vidare ligger Västerhaninge centrum, som erbjuder ett ännu bredare utbud med apotek, systembolag, fler matbutiker, restauranger och övrig service.

Ekonomi & framtidsutsikter
I samband med köp av Runsten Equestrian finns möjlighet att köpa till 16,7 hektar obrukad mark. Marken är idag klassificerad som lantbruksfastighet.
Hårdgjord yta för exempelvis tävlingsstall och parkering, inklusive badbar damm med brygga. 11,7Ha
Skogsområde med främst sandbotten, för exempelvis ridstigar eller vidareutveckling av ridområdet. 5Ha

Runsten Equestrian har en god ekonomi för innevarande år med en omsättning på drygt 12 MSEK och ett ebita-resultat på drygt 3 miljoner SEK. Resultatet för 2026 budgeteras bli högre avtal nyligen har slutits med en gymnasieskola med rid- och hästinriktning som abonnerar en del av gården.

Fakta

Allmänt
Gatuadress:
Runstens gård
Postnummer:
147 91
Ort:
Grödinge
Kommun:
Haninge
Fastighetsbeteckning:
Runsten 1:149
Antal skiften:
1
Förbesiktigad:
Ja
Total areal:
47.0 ha

Mark
Skogsmark
Areal: 6 ha. Barrskog: 246 kbm/ha. Lövskog: 40 kbm/ha.

Ridbanor
Areal: 18 ha

Tomt- och gårdsmark
Areal: 5 ha

Betesmark
Areal: 18 ha. Brukningsvärde: Normal avkastn och kvalitet, avviker max 30%.


Taxering
Typkod:
120, Lantbruksenhet, bebyggd
Taxeringsår:
2024
Summa tax. värde:
30 485 000 kr
Skatt/Avgift:
31 275 kr

Inskrivningar/Plan
Planbestämmelser:
Utökat nybyggnadsförbud enligt väglagen (2015-03-30) Detaljplan (2012-09-03) Vattenskyddsområde (1968-10-24)
Servitut, Ga, samfälligheter, etc:
Gemensamhetsanläggning: Nynäshamn lundby ga:7 ändamål: Vägar Avtalsservitut D-2016-00366881:1 Avtalsservitut Nätstation(2 st) Förmån: Avtalsservitut Dikesanordningar och damm, D201500213056:1.1 Förmån: Avtalsservitut Vattenledning med tillhörande anordningar, 0136IM-14/31743.1 Förmån: Avtalsservitut Väg, D201500503453:1.1 Förmån: Avtalsservitut Väg, D202400261142:1.1 Last: Avtalsservitut Kraftledning, D201600366881:1.1 Last: Avtalsservitut Kraftledning, nätstation, D202200526992:1.1 Last: Avtalsservitut Kraftledning, nätstation, D202300017167:1.1 Last: Ledningsrätt Starkström, 0126K-12137.1 Last: Officialservitut Vatten och avlopp, 0136K-16/7.1 Skattetal: mantal 1/4

Drift och försäkring
Driftskostnad:
638 390 kr/år
Driftskostnad kommentar:
Se specifikation nedan

Övriga uppgifter
Driftskostnader verksamhet per år:
El - 280 680 kr Vatten och avlopp - 18 000 kr Städning och renhållning - 49 921 kr Reparation och underhåll av fastighet - 157 271 kr Reparation/underhåll markanläggning - 28 261 kr Företagsförsäkringar - 36 075 kr Vägavgifter - 68 182 (baserat på 100 stallkunder) Summa driftskostnader - 638 390 kr

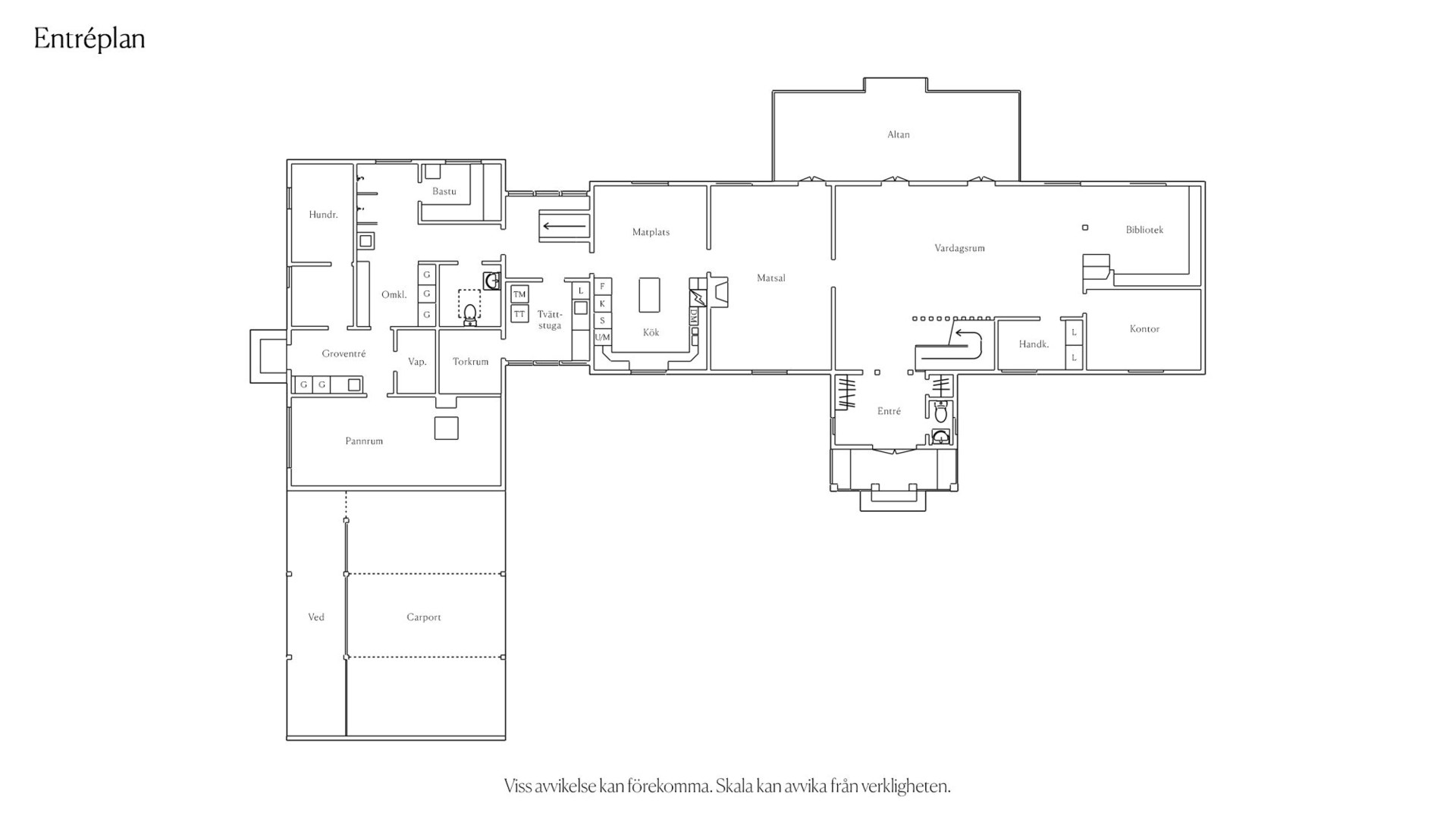
Huvudbyggnad
Grundinformation
Typ:
Mansgårsbyggnad

Byggnad
Byggnadstyp:
1-plansvilla med källare
Byggår:
2001
Fasad:
Träpanel
Stomme:
Trä
Fönster:
2+1 glas
Bjälklag:
Trä
Utvändigt plåtarbete:
Galvad plåt
Grundmur:
Betong/lättbetongsten
Tak:
Tegel
Grundläggning:
Källare samt betongplatta
Uppvärmning:
Kombipanna ved/el till ett vattenburet värmesystem samt luft/luft värmepump

Interiör
Boarea:
305 kvm
Biarea:
69 kvm

Ventilation
Typ:
Mekanisk (endast frånluft)

Tv och bredband
TV:
Fiber

Energideklaration
Energideklaration utförd:
Utförd
Energiprestanda primärenergital:
118 kWh/kvm och år
Energiklass:
D

Tomt och bilplats
Beskrivning bilplats:
Tomtmark
Dokument & länkar
Henrik Flinta

Henrik Flinta

Registrerad fastighetsmäklare
fil.mag.ek | fil.kand.hum
0739-82 80 13

Driven, fokuserad och påläst.

Lång erfarenhet av försäljning i både Sverige och utomlands har givit mig den erfarenhet och kunskap som krävs för att uppnå bästa möjliga resultat. Jag arbetar alltid målfokuserat och strukturerat och får därmed ihop mina affärer på bästa möjliga sätt för både säljare och köpare.

Portfolio

Sälj med oss

Fyll i dina uppgifter så kontaktar vi dig.

Checkboxes
Stora ridhuset
Restauranglokal
Mindre ridhuset
Sandbanor
Uteboxar & nya stallet
Tävlingsstallet
Skrittmaskin
Stall - Västra längan
Sandhagar
Mangårdsbyggnad
Gästboende - Ladan/Loftet
Gästboende - Längan
Rättarbostaden
Maskinhall
Hinderförråd